Dostępne

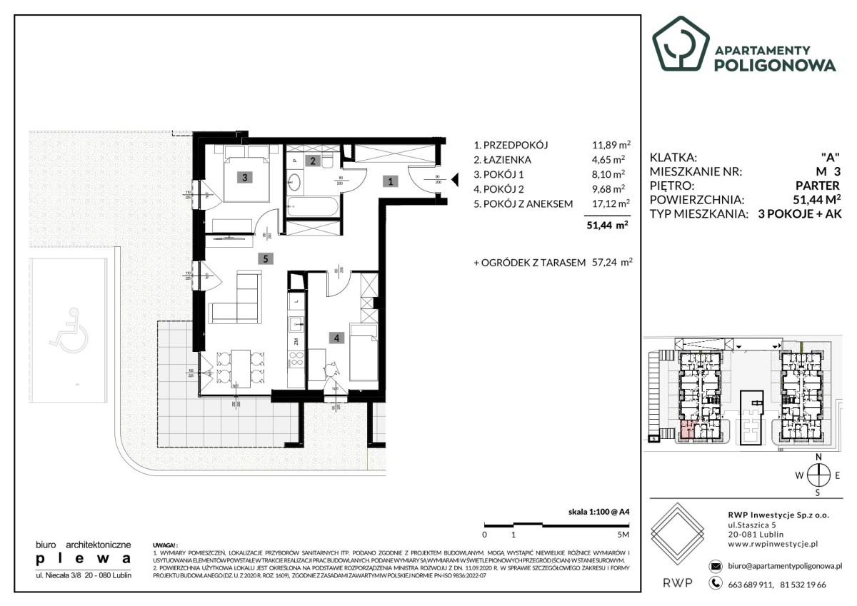
Mieszkanie 3

540 120 zł
10 500 zł / m2
Najniższa cena z 30 dni przed obniżką: 560 696 zł - na podstawie historii ceny. Pokaż historię ceny

Liczba pokoi

3

Piętro

Parter

Powierzchnia

51.44 m2

Wystawa okna:
  • Południe
  • Zachód

Ogródek

57.24 m2

Cena za całość: 555 120 zł
Zapytaj o mieszkanie Karta mieszkania

Apartamenty Poligonowa

Ikona komfortu

Zróżnicowany metraż

Ikona komfortu

Kameralny budynek

Ikona komfortu

Komfort i wygoda

Ikona komfortu

Niepowtarzalny design

Galeria inwestycji

Zapytaj O mieszkanie

Kontakt z Nami