Sprzedane

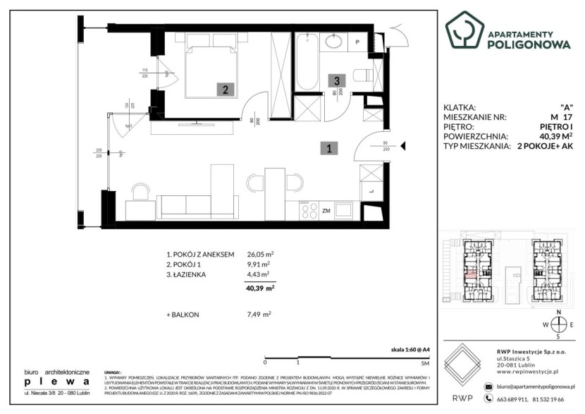
Mieszkanie 17

Liczba pokoi

2

Piętro

Piętro 1

Powierzchnia

40.39 m2

Wystawa okna:
  • Zachód

Balkon

7.49 m2

Apartamenty Poligonowa

Ikona komfortu

Zróżnicowany metraż

Ikona komfortu

Kameralny budynek

Ikona komfortu

Komfort i wygoda

Ikona komfortu

Niepowtarzalny design

Galeria inwestycji

Zapytaj O mieszkanie

Kontakt z Nami