Sprzedane

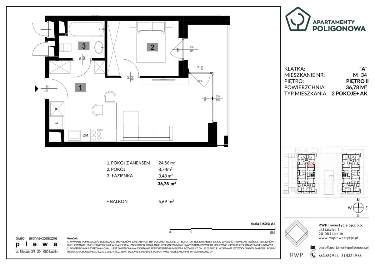
Mieszkanie 34

Liczba pokoi

2

Piętro

Piętro 2

Powierzchnia

36.78 m2

Wystawa okna:
  • Wschód

Balkon

5.69 m2

Zapytaj o mieszkanie Karta mieszkania

Apartamenty Poligonowa

Ikona komfortu

Zróżnicowany metraż

Ikona komfortu

Kameralny budynek

Ikona komfortu

Komfort i wygoda

Ikona komfortu

Niepowtarzalny design

Galeria inwestycji

Zapytaj O mieszkanie

Kontakt z Nami