Sprzedane

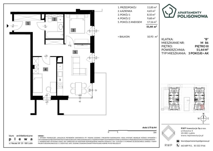
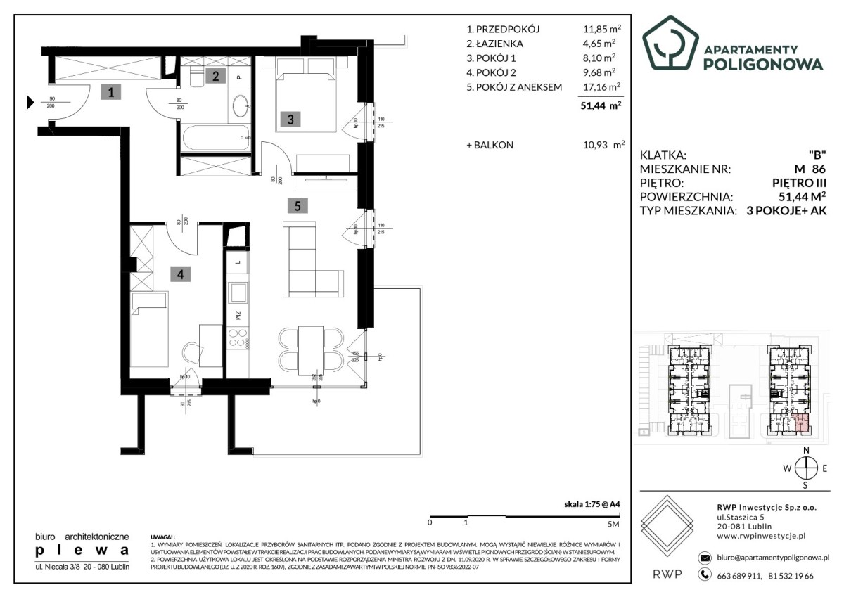
Mieszkanie 86

Liczba pokoi

3

Piętro

Piętro 3

Powierzchnia

51.44 m2

Wystawa okna:
  • Południe
  • Wschód

Balkon

10.93 m2

Apartamenty Poligonowa

Ikona komfortu

Zróżnicowany metraż

Ikona komfortu

Kameralny budynek

Ikona komfortu

Komfort i wygoda

Ikona komfortu

Niepowtarzalny design

Galeria inwestycji

Zapytaj O mieszkanie

Kontakt z Nami