Dostępne

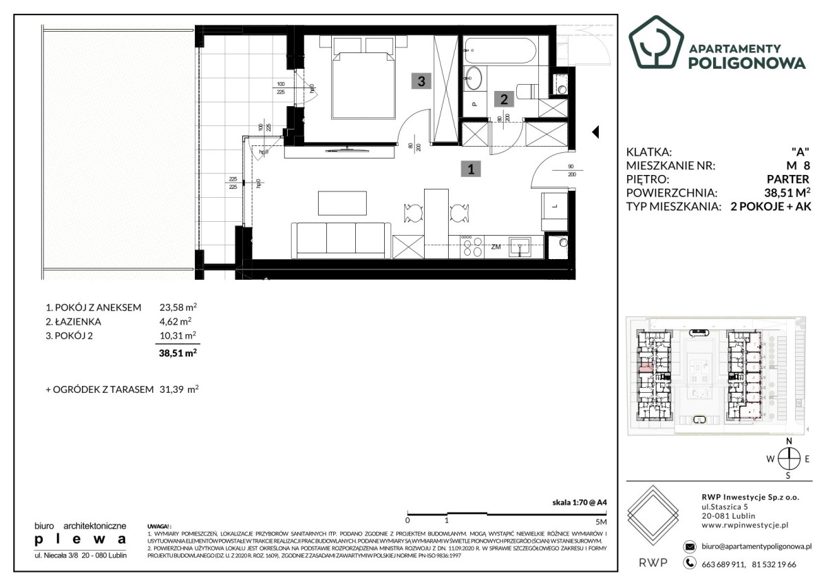
Mieszkanie 8

458 269 zł
11 900 zł / m2
Pokaż historię ceny

Liczba pokoi

2

Piętro

Parter

Powierzchnia

38.51 m2

Wystawa okna:
  • Zachód

Ogródek

31.39 m2

Cena za całość: 473 269 zł

Apartamenty Poligonowa

Ikona komfortu

Zróżnicowany metraż

Ikona komfortu

Kameralny budynek

Ikona komfortu

Komfort i wygoda

Ikona komfortu

Niepowtarzalny design

Galeria inwestycji

Zapytaj O mieszkanie

Kontakt z Nami