Dostępne

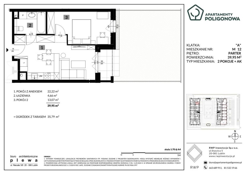
Mieszkanie 12

475 405 zł
11 900 zł / m2
Pokaż historię ceny

Liczba pokoi

2

Piętro

Parter

Powierzchnia

39.95 m2

Wystawa okna:
  • Wschód

Ogródek

35.79 m2

Cena za całość: 490 405 zł

Apartamenty Poligonowa

Ikona komfortu

Zróżnicowany metraż

Ikona komfortu

Kameralny budynek

Ikona komfortu

Komfort i wygoda

Ikona komfortu

Niepowtarzalny design

Galeria inwestycji

Zapytaj O mieszkanie

Kontakt z Nami