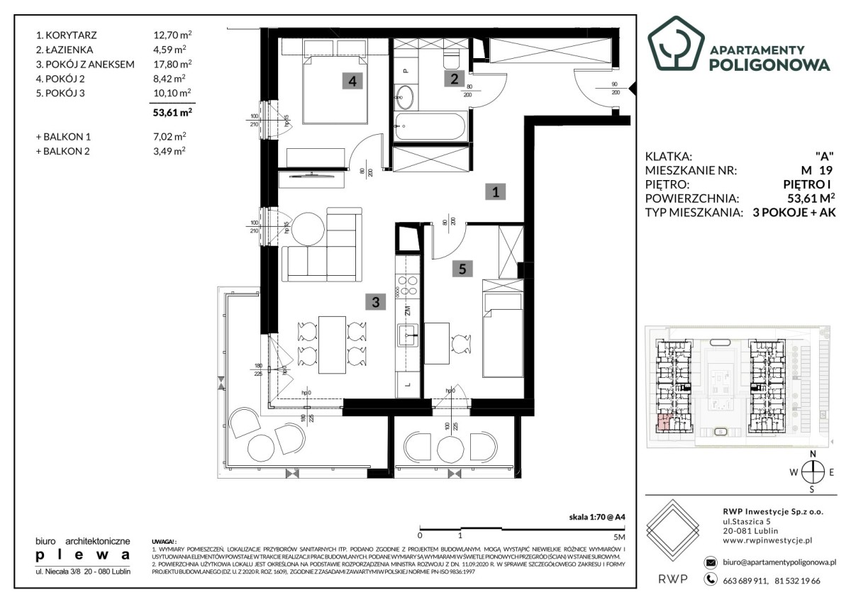
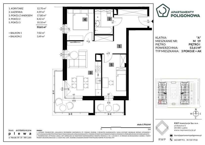
Dostępne

Mieszkanie 19

584 349 zł
10 900 zł / m2
Pokaż historię ceny

Liczba pokoi

3

Piętro

Piętro 1

Powierzchnia

53.61 m2

Wystawa okna:
  • Południe
  • Zachód

Balkon

7.02 m2

Balkon 2

3.49 m2

Apartamenty Poligonowa

Ikona komfortu

Zróżnicowany metraż

Ikona komfortu

Kameralny budynek

Ikona komfortu

Komfort i wygoda

Ikona komfortu

Niepowtarzalny design

Galeria inwestycji

Zapytaj O mieszkanie

Kontakt z Nami