Sprzedane

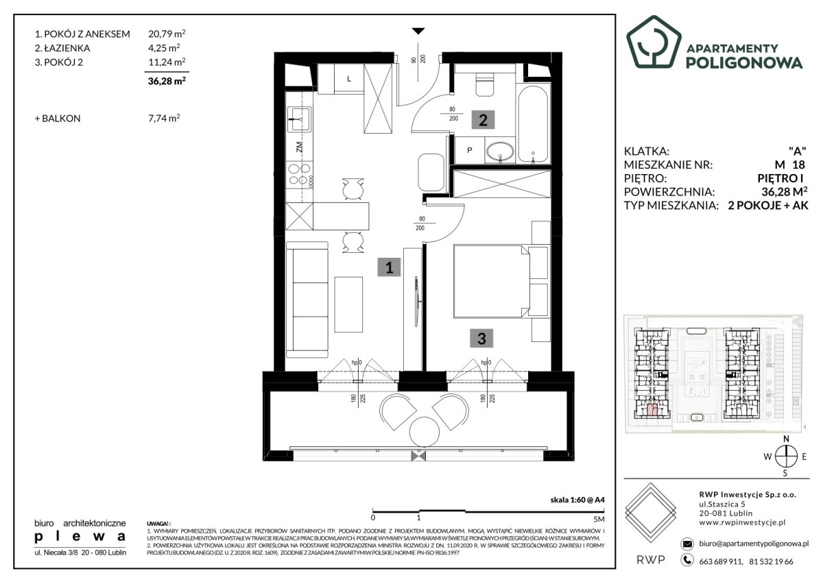
Mieszkanie 18

Liczba pokoi

2

Piętro

Piętro 1

Powierzchnia

36.28 m2

Wystawa okna:
  • Południe

Balkon

7.74 m2

Apartamenty Poligonowa

Ikona komfortu

Zróżnicowany metraż

Ikona komfortu

Kameralny budynek

Ikona komfortu

Komfort i wygoda

Ikona komfortu

Niepowtarzalny design

Galeria inwestycji

Zapytaj O mieszkanie

Kontakt z Nami