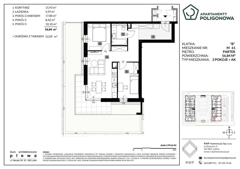
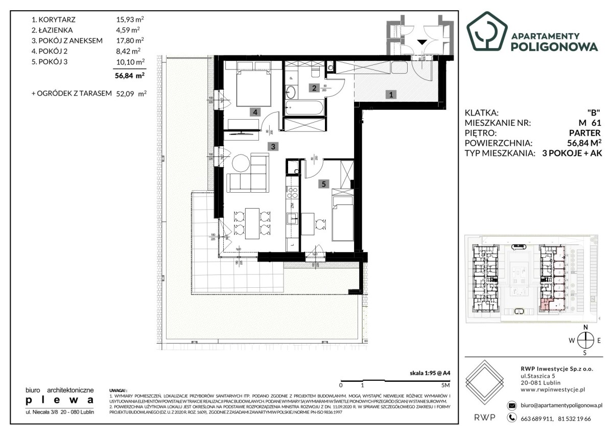
Dostępne

Mieszkanie 61

619 556 zł
10 900 zł / m2
Pokaż historię ceny

Liczba pokoi

3

Piętro

Parter

Powierzchnia

56.84 m2

Wystawa okna:
  • Południe
  • Zachód

Ogródek

52.09 m2

Cena za całość: 634 556 zł

Apartamenty Poligonowa

Ikona komfortu

Zróżnicowany metraż

Ikona komfortu

Kameralny budynek

Ikona komfortu

Komfort i wygoda

Ikona komfortu

Niepowtarzalny design

Galeria inwestycji

Zapytaj O mieszkanie

Kontakt z Nami