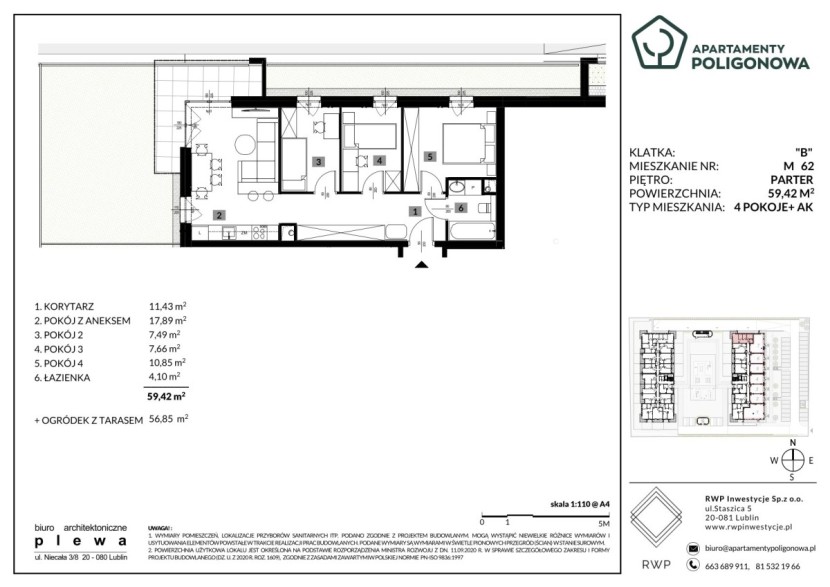
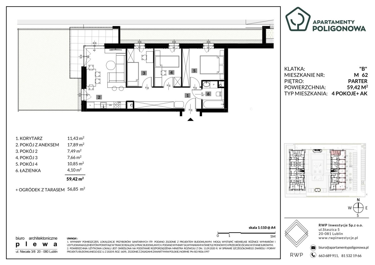
Dostępne

Mieszkanie 62

641 736 zł
10 800 zł / m2
Pokaż historię ceny

Liczba pokoi

4

Piętro

Parter

Powierzchnia

59.42 m2

Wystawa okna:
  • Północ
  • Zachód

Ogródek

56.85 m2

Cena za całość: 656 736 zł

Apartamenty Poligonowa

Ikona komfortu

Zróżnicowany metraż

Ikona komfortu

Kameralny budynek

Ikona komfortu

Komfort i wygoda

Ikona komfortu

Niepowtarzalny design

Galeria inwestycji

Zapytaj O mieszkanie

Kontakt z Nami