Sprzedane

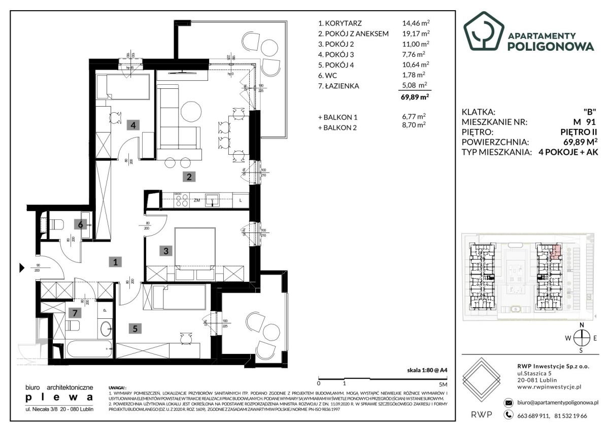
Mieszkanie 91

Liczba pokoi

4

Piętro

Piętro 2

Powierzchnia

69.89 m2

Wystawa okna:
  • Północ
  • Wschód

Balkon

6.77 m2

Balkon 2

8.70 m2

Apartamenty Poligonowa

Ikona komfortu

Zróżnicowany metraż

Ikona komfortu

Kameralny budynek

Ikona komfortu

Komfort i wygoda

Ikona komfortu

Niepowtarzalny design

Galeria inwestycji

Zapytaj O mieszkanie

Kontakt z Nami